

Row-Home Renovation
Spring 2023


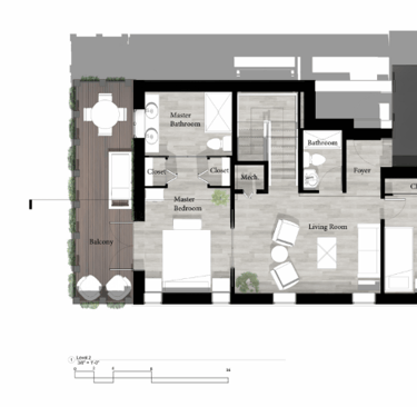
For this two-week project we were asked to renovate the rowhomes in the Brookland region of DC. For this project My goal was to create an easily accessible space that would allow everyone to have the same access to the entrance regardless of physical ability.




